斗式提升機廠家參數表大全詳細介紹
|
型 式
|
TD 型
|
TH 型
|
|
結構特征
|
采用橡膠帶作牽引構件
|
采用鍛造的環形鏈條作為牽引構件
|
|
卸載特征
|
采用離心式或混合式方式卸料
|
采用混合式或重力式方式卸料
|
|
適用輸送物料
|
松散密度ρ< 1 . 5t/m3 的粉狀、粒狀,
|
松散密度 p < 1 . 5t / m ’的粉狀、粒狀. 小塊狀的無磨琢性、半磨琢性物料
|
|
適用溫度
|
被輸送物料溫度不得超過 60 ℃,如采用耐熱橡膠帶時溫度不超 200 ℃
|
被輸送物料溫度不得超過 250 ℃
|
|
型 號
|
TDl00 、 TD1 60 、 TD250 、 TD315 ,
|
TH315 、 TH400 、 TH500 、
|
|
提升高度
|
約在 4 — 40m m 范圍內
|
約在 4 . 5 — 40mm 范圍內
|
|
輸送量
|
4 — 238m3 / h
|
35 — 185m3/h |
技術性能:
|
斗提機型號
|
TD100
|
TD160
|
TD250
|
TD315
|
||||||||||
| 料斗型式 |
Q
|
H
|
Q
|
H
|
Zd
|
Sd
|
Q
|
H
|
Zd
|
Sd
|
Q
|
H
|
Zd
|
Sd
|
| 輸送量,m3/h |
4
|
7.6
|
9
|
16
|
16
|
27
|
20
|
36
|
38
|
59
|
28
|
50
|
42
|
67
|
| 料斗容積,L |
0.15
|
0.3
|
0.49
|
0.9
|
1.2
|
1.9
|
1.12
|
2.24
|
3.0
|
4.6
|
1.95
|
3.55
|
3.75
|
5.8
|
| 料斗運行速度,m/s |
1.4
|
1.4
|
1.6
|
1.6
|
||||||||||
| 滾筒轉速,r/min |
67
|
67
|
61
|
61
|
||||||||||
|
斗提機型號
|
TD400
|
TD500
|
TD630
|
|||||||||
| 料斗型式 | Q | H | Zd | Sd | Q | H | Zd | Sd | Q | H | Zd | Sd |
| 輸送量,m3/h | 40 | 76 | 68 | 110 | 63 | 116 | 96 | 154 | - | 142 | 148 | 238 |
| 料斗容積,L | 3.1 | 5.6 | 5.9 | 9.4 | 4.84 | 9.0 | 9.3 | 14.9 | - | 14 | 14.6 | 23.5 |
| 料斗運行速度,m/s | 1.8 | 1.8 | 2.0 | |||||||||
| 滾筒轉速,r/min | 55 | 55 | 48 | |||||||||
TD型斗提機結構型式
(1)傳動裝置 TD型斗提機的傳動裝置有兩種形式,分別配有YZ型減速器或ZQ(YY)型減速器。YZ型軸裝減速器直接套裝在主軸軸頭上,省去了傳動平臺、聯軸器等,便結構緊湊,重量輕,而且其內部帶有異型輥逆止器,逆止可靠。該減速器噪聲低,運轉平穩,并隨主軸浮動,可消除安裝應力。
(2)TD型斗提機備有四種料斗Q型(淺斗)、H型(弧底斗)、ZD型(中深斗)、SD型(深 斗)
| 斗提機型號 | TD100 | TD160 | TD250 | TD315 | TD400 | TD500 | TD630 | |
| 輪廓高度L | C+1100 | C+1365 | C+1535 | C+1640 | C+1790 | C+1865 | C+2045 | |
| 整機結構 | H | C-820 | C-930 | C-1250 | C-1245 | C-1500 | C-1700 | C-1730 |
| H4 | 600 | 700 | 800 | 850 | 950 | 900 | 1060 | |
| S | 200 | 250 | 250 | 250 | 250 | 250 | 315 | |
| 料斗 | t | 200 | 350/280 | 450/360 | 500/400 | 560/480 | 625/500 | 710 |
| b | 100 | 160 | 250 | 315 | 400 | 500 | 630 | |
| 地腳孔 | a3 | 200 | 250 | 300 | 300 | 400 | 400 | 380 |
| b3 | 310 | 400 | 538 | 648 | 768 | 900 | 1020 | |
| n3 | 8 | 8 | 8 | 8 | 8 | 8 | 10 | |
| d3 | Φ18 | Φ18 | Φ18 | Φ18 | Φ22 | Φ22 | Φ30 | |
| 上、下部機殼及外形輪廓 | H3 | 970 | 1185 | 1320 | 1488 | 1500 | 1655 | 1750 |
| H6 | 1210 | 1500 | 1800 | 1800 | 2000 | 2300 | 2500 | |
| A2 | 692 | 985 | 1175 | 1200 | 1350 | 1410 | 1590 | |
| A6 | 776 | 996 | 1266 | 1266 | 1558 | 1610 | 1890 | |
| A7 | 1050 | 1235 | 1600 | 1700 | 1980 | 2200 | 2500 | |
| B2 | 220 | 295 | 394 | 440 | 535 | 605 | 660 | |
| B4 | 370 | 461 | 596 | 706 | 828 | 980 | 1110 | |
| B5 | 330 | 475 | 610 | 710 | 835 | 1000 | 1110 | |
| 中部機殼 | A4 | 776 | 982 | 1152 | 1254 | 1548 | 1570 | 1850 |
| A5 | 805 | 1021 | 1302 | 1400 | 1580 | 1630 | 1910 | |
| B3 | 390 | 525 | 682 | 794 | 920 | 1040 | 1160 | |
| 卸料口 | H1 | 520 | 630 | 750 | 795 | 850 | 1000 | 1200 |
| A3 | 438 | 548 | 713 | 763 | 824 | 885 | 1045 | |
| a1 | 334 | 365 | 600 | 560 | 670 | 700 | 700 | |
| a2 | 120 | 150 | 200 | 230 | 295 | 355 | 300 | |
| a3 | 390 | 431 | 676 | 638 | 758 | 880 | 800 | |
| b1 | 224 | 315 | 450 | 560 | 670 | 780 | 900 | |
| b2 | 95 | 150 | 200 | 230 | 295 | 300 | 280 | |
| b3 | 280 | 381 | 526 | 638 | 758 | 800 | 1000 | |
| n1 | 12 | 12 | 12 | 12 | 12 | 12 | 14 | |
| d1 | Φ12 | Φ12 | Φ12 | Φ12 | Φ14 | Φ18 | Φ18 | |
| 進料口 | H5 | 900 | 1320 | 1320 | 1320 | 1600 | 1600 | 1885 |
| a4 | 280 | 355 | 355 | 400 | 450 | 500 | 560 | |
| a5 | 80 | 58 | 58 | 80 | 100 | 65 | 85 | |
| a6 | 100 | 150 | 150 | 160 | 175 | 210 | 160 | |
| a7 | 19 | 45 | 45 | 38 | 40 | 40 | 30 | |
| b4 | 220 | 320 | 320 | 400 | 450 | 500 | 630 | |
| b5 | 100 | 155 | 155 | 160 | 215 | 220 | 160 | |
| b6 | 250 | 370 | 370 | 460 | 510 | 550 | 700 | |
| n2 | 9 | 9 | 9 | 9 | 9 | 9 | 12 | |
| d2 | Φ10 | Φ12 | Φ12 | Φ12 | Φ14 | Φ14 | Φ14 | |
| 斗提機型號 | TD100 | TD160 | TD250 | TD315 | TD400 | TD500 | TD630 | |
| 輪廓高度L | C+1100 | C+1365 | C+1535 | C+1640 | C+1790 | C+1865 | C+2045 | |
| 整機結構 | H | C-820 | C-930 | C-1250 | C-1245 | C-1500 | C-1700 | C-1730 |
| H4 | 600 | 700 | 800 | 850 | 950 | 900 | 1060 | |
| S | 200 | 250 | 250 | 250 | 250 | 250 | 315 | |
| 料斗 | t | 200 | 350/280 | 450/360 | 500/400 | 560/480 | 625/500 | 710 |
| b | 100 | 160 | 250 | 315 | 400 | 500 | 630 | |
| 地腳孔 | a3 | 200 | 250 | 300 | 300 | 400 | 400 | 380 |
| b3 | 310 | 400 | 538 | 648 | 768 | 900 | 1020 | |
| n3 | 8 | 8 | 8 | 8 | 8 | 8 | 10 | |
| d3 | Φ18 | Φ18 | Φ18 | Φ18 | Φ22 | Φ22 | Φ30 | |
| 上、下部機殼及外形輪廓 | H3 | 970 | 1185 | 1320 | 1488 | 1500 | 1655 | 1750 |
| H6 | 1210 | 1500 | 1800 | 1800 | 2000 | 2300 | 2500 | |
| A2 | 692 | 985 | 1175 | 1200 | 1350 | 1410 | 1590 | |
| A6 | 776 | 996 | 1266 | 1266 | 1558 | 1610 | 1890 | |
| A7 | 1050 | 1235 | 1600 | 1700 | 1980 | 2200 | 2500 | |
| B2 | 220 | 295 | 394 | 440 | 535 | 605 | 660 | |
| B4 | 370 | 461 | 596 | 706 | 828 | 980 | 1110 | |
| B5 | 330 | 475 | 610 | 710 | 835 | 1000 | 1110 | |
| 中部機殼 | A4 | 776 | 982 | 1152 | 1254 | 1548 | 1570 | 1850 |
| A5 | 805 | 1021 | 1302 | 1400 | 1580 | 1630 | 1910 | |
| B3 | 390 | 525 | 682 | 794 | 920 | 1040 | 1160 | |
| 卸料口 | H1 | 520 | 630 | 750 | 795 | 850 | 1000 | 1200 |
| A3 | 438 | 548 | 713 | 763 | 824 | 885 | 1045 | |
| a1 | 334 | 365 | 600 | 560 | 670 | 700 | 700 | |
| a2 | 120 | 150 | 200 | 230 | 295 | 355 | 300 | |
| a3 | 390 | 431 | 676 | 638 | 758 | 880 | 800 | |
| b1 | 224 | 315 | 450 | 560 | 670 | 780 | 900 | |
| b2 | 95 | 150 | 200 | 230 | 295 | 300 | 280 | |
| b3 | 280 | 381 | 526 | 638 | 758 | 800 | 1000 | |
| n1 | 12 | 12 | 12 | 12 | 12 | 12 | 14 | |
| d1 | Φ12 | Φ12 | Φ12 | Φ12 | Φ14 | Φ18 | Φ18 | |
| 進料口 | H5 | 900 | 1320 | 1320 | 1320 | 1600 | 1600 | 1885 |
| a4 | 280 | 355 | 355 | 400 | 450 | 500 | 560 | |
| a5 | 80 | 58 | 58 | 80 | 100 | 65 | 85 | |
| a6 | 100 | 150 | 150 | 160 | 175 | 210 | 160 | |
| a7 | 19 | 45 | 45 | 38 | 40 | 40 | 30 | |
| b4 | 220 | 320 | 320 | 400 | 450 | 500 | 630 | |
| b5 | 100 | 155 | 155 | 160 | 215 | 220 | 160 | |
| b6 | 250 | 370 | 370 | 460 | 510 | 550 | 700 | |
| n2 | 9 | 9 | 9 | 9 | 9 | 9 | 12 | |
| d2 | Φ10 | Φ12 | Φ12 | Φ12 | Φ14 | Φ14 | Φ14 | |
|
斗提機型號
|
傳動裝置代號
|
電動機
|
ZQ減速器型號
|
重量kg
|
||
|
型號
|
功率,KW
|
右裝傳動裝置
|
左裝傳動裝置
|
|||
| TD100 | C1 | Y100L-6 | 1.5 | ZQ25-16-IIIZ | ZQ25-16-IVZ | 230 |
| C2 | Y112M-6 | 2.2 | 240 | |||
| TD160 | C1 | Y132S-6 | 3 | ZQ35-12.5-IIIZ | ZQ35-12.5-IVZ | 472 |
| C2 | Y132M1-6 | 4 | 490 | |||
| C3 | Y132M2-6 | 5.5 | ZQ40-12.5-IIIZ | ZQ40-12.5-IVZ | 563 | |
| C4 | Y160M-6 | 7.5 | 621 | |||
| TD250 | C1 | Y132M2-6 | 5.5 | ZQ40-16-IIIZ | ZQ40-16-IVZ | 576 |
| C2 | Y160M-6 | 7.5 | 616 | |||
| C3 | Y160L-6 | 11 | ZQ50-16-IIIZ | ZQ50-16-IVZ | 838 | |
| C4 | Y180L-6 | 15 | 903 | |||
| TD315 | C1 | Y160M-6 | 7.5 | ZQ40-16-IIIZ | ZQ40-16-IVZ | 645 |
| C2 | Y160M-4 | 11 | ZQ50-20-VIZ | ZQ50-20-VZ | 855 | |
| C3 | Y160L-4 | 15 | 883 | |||
| TD400 | C1 | Y180L-6 | 15 | ZQ50-16-IIIZ | ZQ50-16-IVZ | 936 |
| C2 | Y200L1-6 | 18.5 | ZQ65-16-VIZ | ZQ65-16-VZ | 1687 | |
| C3 | Y200L2-6 | 22 | 1702 | |||
| C4 | Y225M-6 | 30 | 1787 | |||
| TD500 | C1 | Y180L-6 | 15 | ZQ50-16-IIIZ | ZQ50-16-IVZ | 1724 |
| C2 | Y200L1-6 | 18.5 | ZQ65-16-VIZ | ZQ65-16-VZ | 1760 | |
| C3 | Y200L2-6 | 22 | 1775 | |||
| C4 | Y225M-6 | 30 | 1810 | |||
| TD630 | C1 | Y200L2-6 | 2 | ZQ65-20-VIZ | ZQ65-20-VZ | 1876 |
| C2 | T225M-6 | 30 | 1952 | |||
| YY型斗提機驅動裝置配套表 |
|
斗提機型號
|
傳動裝置代號
|
電動機
|
減速機型號
|
重量kg
|
|
|
型號
|
功率,KW
|
||||
|
TD160
|
C1
|
Y112M-4
|
|
ZLY112-16
|
296
|
|
C2
|
Y132S-4
|
5.5
|
ZLY112-16
|
321
|
|
|
C3
|
Y132M-4
|
7.5
|
ZLY125-16
|
355
|
|
|
TD250
|
C1
|
Y132S-4
|
5.5
|
ZLY112-16
|
373
|
|
C2
|
Y132M-4
|
7.5
|
ZLY125-16
|
466
|
|
|
C3
|
Y160M-4
|
11
|
ZLY140-16
|
587
|
|
|
TD315
|
C1
|
Y132M-4
|
7.5
|
ZLY125-16
|
452
|
|
C2
|
Y160M-4
|
11
|
ZLY140-16
|
590
|
|
|
C3
|
Y160L-4
|
15
|
ZLY160-16
|
639
|
|
|
TD400
|
C1
|
Y160M-4
|
11
|
ZLY140-16
|
551
|
|
C2
|
Y160L-4
|
15
|
ZLY160-16
|
693
|
|
|
C3
|
Y180M-4
|
18.5
|
ZLY160-16
|
734
|
|
|
C4
|
Y180L-4
|
22
|
ZLY180-16
|
790
|
|
|
TD500
|
C1
|
Y160L-4
|
15
|
ZLY160-16
|
771
|
|
C2
|
Y180M-4
|
18.5
|
ZLY160-16
|
812
|
|
|
C3
|
Y180L-4
|
22
|
ZLY180-16
|
854
|
|
|
C4
|
Y225M-6
|
30
|
ZLY200-16
|
1202
|
|
|
TD630
|
C1
|
Y200L2-6
|
22
|
ZLY180-16
|
1208
|
|
C2
|
Y225M-6
|
30
|
ZLY200-12.5
|
1401
|
|
|
C3
|
Y250M-6
|
37
|
ZLY224-12.5
|
1639
|
|
|
C4
|
Y280S-6
|
45
|
ZLY224-12.5
|
1815
|
|
|
斗提機型號
|
傳動裝置尺寸(配置ZQ型減速器)
|
||||||
|
制法
|
H2
|
A8
|
B6
|
B7
|
A1
|
B2
|
|
| TD100 | C1 |
165
|
620
|
504.5
|
315
|
900
|
624.5
|
| C2 |
619
|
322
|
|||||
| TD160 | C1 |
290
|
868
|
674
|
405
|
1245
|
914
|
| C2 |
424
|
||||||
| C3 |
340
|
918
|
729
|
434
|
|||
| C4 |
469
|
||||||
| TD250 | C1 |
340
|
898.5
|
819
|
434
|
1273
|
1021
|
| C2 |
480
|
||||||
| C3 |
410
|
924
|
839
|
566
|
1295
|
1055
|
|
| C4 |
591.5
|
||||||
| TD315 | C1 |
335
|
828
|
918
|
497
|
1290
|
1147
|
| C2 |
405
|
925
|
938
|
558
|
1420
|
1300
|
|
| C3 |
1050
|
563
|
|||||
| C4 |
|
|
|
|
|
|
|
| TD400 | C1 |
405
|
1045
|
1041.5
|
592
|
1600
|
1443
|
| C2 |
445
|
1156
|
1148.5
|
745
|
2155
|
||
| C3 | |||||||
| C4 |
1106
|
752
|
|||||
| TD500 | C1 |
445
|
1252.5
|
1120
|
720.5
|
1640
|
1705
|
| C2 |
1224
|
745.5
|
|||||
| C3 | |||||||
| C4 |
764.5
|
||||||
| TD630 | C1 |
450
|
1106
|
1318
|
764.5
|
1725
|
1765
|
| C2 |
1206
|
786
|
|||||
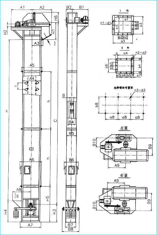
TH型斗提機外形及安裝尺寸
|
斗提機型號
|
整機結構尺寸
|
地腳孔尺寸
|
上部機殼尺寸
|
下部機殼尺寸
|
中部機殼尺寸
|
|||||||||||||
|
L
|
H
|
H3
|
S
|
a8
|
b8
|
n3×d3
|
H1
|
A2
|
B2
|
H5
|
A7
|
A8
|
B5
|
A4
|
A5
|
B3
|
B4
|
|
| TH160 | C+1300 | C-750 | 750 | 200 | 400 | 350 | 6×Φ18 | 900 | 1000 | 295 | 1500 | 1131 | 1330 | 497 | 1000 | 1105 | 280 | 385 |
| TH200 | C+1350 | C-750 | 750 | 200 | 400 | 425 | 6×Φ18 | 900 | 1000 | 340 | 1500 | 1131 | 1374 | 506 | 1000 | 1105 | 255 | 460 |
| TH250 | C+1500 | C-950 | 850 | 200 | 340 | 496 | 8×Φ22 | 1000 | 1190 | 376 | 1800 | 1346 | 1649 | 598 | 1180 | 1362 | 400 | 532 |
| TH315 | C+1600 | C-900 | 900 | 250 | 350 | 571 | 8×Φ22 | 1120 | 1267 | 443 | 1800 | 1416 | 1825 | 695 | 1250 | 1396 | 475 | 621 |
| TH400 | C+1760 | C-950 | 950 | 250 | 400 | 658 | 8×Φ22 | 1250 | 1394 | 518 | 1900 | 1566 | 2080 | 793 | 1400 | 1546 | 560 | 706 |
| TH500 | C+2300 | C-940 | 1060 | 250 | 360 | 788 | 10×Φ26 | 1400 | 1545 | 579 | 2000 | 1808 | 2380 | 910 | 1600 | 1768 | 670 | 838 |
| TH630 | C+2300 | C-950 | 1250 | 300 | 400 | 918 | 10×Φ26 | 1600 | 1706 | 644 | 2200 | 2028 | 2720 | 1066 | 1800 | 1968 | 800 | 968 |
| TH800 | C+2390 | C-880 | 1320 | 300 | 450 | 1100 | 10×Φ26 | 1800 | 1866 | 709 | 2200 | 2208 | 3110 | 1216 | 2000 | 2148 | 1000 | 1148 |
| TH1000 | C+2650 | C-950 | 1400 | 300 | 410 | 1360 | 12×Φ32 | 2000 | 2065 | 825 | 2350 | 2460 | 3560 | 1460 | 2200 | 2370 | 1200 | 1370 |
| TH1250 | C+2780 | C-1000 | 1500 | 320 | 450 | 1570 | 12×Φ32 | 2400 | 2221 | 910 | 2500 | 2660 | 4040 | 1710 | 2400 | 2570 | 1450 | 1520 |
|
斗提機型號
|
驅動裝置
|
電動機
|
減速器型號
|
相關尺寸,mm
|
重量kg
|
|||
|
型號
|
功率KW
|
A1
|
B1
|
H2
|
||||
| TH160 | Y2Y112 | Y100L1-4 | 2.2 | ZLY112-11.2-I(S)/II(N) | 728 | 815 | 205 | 89 |
| Y3Y112 | Y100L2-4 | 3 | 96 | |||||
| Y4Y112 | Y112M-4 | 4 | 104 | |||||
| Y5Y112 | Y132S-4 | 5.5 | 130 | |||||
| Y7Y125 | Y132M-4 | 7.5 | ZLY125-11.2-I(S)/II(N) | 220 | 153 | |||
| TH200 | Y3Y112 | Y100L2-4 | 3 | ZLY112-12.5I(S)/II(N) | 734 | 960 | 205 | 112 |
| Y4Y112 | Y112M-4 | 4 | 127 | |||||
| Y5Y112 | Y132S-4 | 5.5 | 154 | |||||
| Y7Y125 | Y132M-4 | 7.5 | ZLY125-12.5-I(S)/II(N) | 220 | 163 | |||
| Y11Y140 | Y160M-4 | 11 | ZLY140-12.5-I(S)/II(N) | 260 | 235 | |||
| TH250 | Y4Y112 | Y112M-4 | 4 | ZLY112-18-I(S)/II(N) | 698 | 1023 | 205 | 184 |
| Y5Y125 | Y132S-4 | 5.5 | ZLY125-18-I(S)/II(N) | 220 | 195 | |||
| Y7Y140 | Y132M-4 | 7.5 | ZLY140-18-I(S)/II(N) | 260 | 278 | |||
| Y11Y160 | Y160M-4 | 11 | ZLY160-18-I(S)/II(N) | 280 | 360 | |||
| Y15Y180 | Y160L-4 | 15 | ZLY180-18-I(S)/II(N) | 320 | 416 | |||
| TH315 | Y5Y125 | Y132S-4 | 5.5 | ZLY125-20-I(S)/II(N) | 718 | 1025 | 220 | 205 |
| Y7Y140 | Y132M-4 | 7.5 | ZLY140-20-I(S)/II(N) | 260 | 310 | |||
| Y11Y160 | Y160M-4 | 11 | ZLY160-20-I(S)/II(N) | 280 | 380 | |||
| Y15Y180 | Y160L-4 | 15 | ZLY180-20-I(S)/II(N) | 720 | 1156 | 320 | 536 | |
| Y18Y180 | Y180M-4 | 18.5 | 564 | |||||
| TH400 | Y7Y140 | Y132M-4 | 7.5 | ZLY140-20-I(S)/II(N) | 854 | 1318 | 260 | 520 |
| Y11Y160 | Y160M-4 | 11 | ZLY160-20-I(S)/II(N) | 280 | 575 | |||
| Y15Y180 | Y160L-4 | 15 | ZLY180-20-I(S)/II(N) | 320 | 672 | |||
| Y18Y180 | Y180M-4 | 18.5 | 690 | |||||
| Y22Y200 | Y180L-4 | 22 | ZLY200-20-I(S)/II(N) | 345 | 827 | |||
| TH500 | Y11Y160 | Y160M-4 | 11 | ZLY160-20-I(S)/II(N) | 1042 | 1394 | 280 | 658 |
| Y15Y180 | Y160L-4 | 15 | ZLY180-20-I(S)/II(N) | 320 | 708 | |||
| Y18Y180 | Y180M-4 | 18.5 | 830 | |||||
| Y22Y200 | Y180L-4 | 22 | ZLY200-20-I(S)/II(N) | 345 | 858 | |||
| Y30Y224 | Y200L-4 | 30 | ZLY224-20-I(S)/II(N) | 370 | 946 | |||
| TH630 | Y18Y200 | Y180M-4 | 18.5 | ZSY200-22.4-I(S)/II(N) | 1042 | 1589 | 345 | 1098 |
| Y22Y200 | Y180L-4 | 22 | ZSY224-22.4-I(S)/II(N) | 1157 | ||||
| Y30Y224 | Y200L-4 | 30 | 370 | 1206 | ||||
| Y37Y250 | Y225S-4 | 37 | ZSY224-22.4-I(S)/II(N) | 400 | 1434 | |||
| Y45Y250 | Y225M-4 | 45 | 1578 | |||||
| TH800 | Y30Y224 | Y200L-4 | 30 | ZSY224-28-I(S)/II(N) | 1178 | 1904 | 370 | 1556 |
| Y37Y250 | Y225S-4 | 37 | ZSY250-28-I(S)/II(N) | 400 | 1784 | |||
| Y45Y280 | Y225M-4 | 45 | ZSY250-28-I(S)/II(N) | 455 | 1928 | |||
| Y55Y315 | Y250M-4 | 55 | ZSY315-28-I(S)/II(N) | 495 | 2184 | |||
| Y75Y335 | Y280S-4 | 75 | ZSY355-28-I(S)/II(N) | 540 | 2724 | |||
| TH1000 | Y37Y280 | Y225S-4 | 37 | ZSY280-31.5-I(S)/II(N) | 455 | 2184 | ||
| Y45Y315 | Y225M-4 | 45 | ZSY315-31.5-I(S)/II(N) | 495 | 2578 | |||
| Y55Y355 | Y250M-4 | 55 | ZSY355-31.5-I(S)/II(N) | 540 | 3124 | |||
| Y75Y355 | Y280S-4 | 75 | 3450 | |||||
| Y90Y400 | Y280M-4 | 90 | ZSY400-31.5-I(S)/II(N) | 590 | 4039 | |||
| TH1250 | Y55Y355 | Y250M-4 | 55 | ZSY355-31.5-I(S)/II(N) | 1285 | 2345 | 540 | 3689 |
| Y75Y355 | Y280S-4 | 75 | 4015 | |||||
| Y90Y400 | Y280M-4 | 90 | ZSY400-31.5-I(S)/II(N) | 590 | 4604 | |||
| Y110Y400 | Y315S-4 | 110 | 4689 | |||||
| Y132Y450 | Y315M1-4 | 132 | ZSY450-31.5-I(S)/II(N) | 640 | 5716 | |||
斗式提升機廠家提示:請通過正規渠道購買奧創輸送機,以保障您的合法權益!
訂購網址請登錄河南奧創機械有限公司官方網站:www.tmdistrict87.com 24小時服務熱線:13353676726


