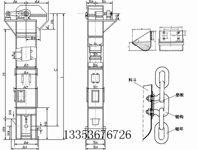
TH型環鏈斗式提升機鏈條斷鏈存在的問題
文章作者:奧創機械發布時間:2020/1/4 10:39:56瀏覽次數:
TH型環鏈斗式提升機鏈條斷鏈存在的問題:
1、 原鏈條銷軸為Φ14的圓柱銷,兩端15mm均被削低2mm,削出的平面中部開有通孔用來安裝開口銷。由于內、外鏈板間的拉力正好作用于兩端的平面上,當鏈條達到一定負荷且銷軸出現金屬疲勞后,銷軸最薄弱的兩端開始頻繁斷裂。
2、 提升機底部為密閉設計,銷軸上用來固定其防止位移的開口銷很容易被提升機底部集料磨損,一旦開口銷松脫銷軸后竄,外鏈板便會脫落,造成銷軸單邊受力滑出套筒或被拉斷,致使鏈條垮塌。 /3、 提升機鏈輪和鏈條滾子均為40Cr材質,運行中均有不同程度磨損,但滾子的磨損無法進行修復,久之便會出現破裂現象,導致鏈條套筒直接受力帶來安全隱患。

3、鏈板、銷軸材質選用45#鋼,表面硬度較低不耐磨,且鏈板過薄只有3mm,在交變應力載荷作用下,銷軸及鏈板表面易發生疲勞損傷并最終發生疲勞斷裂。
中間鏈滾中的銷軸的斷裂是鏈條斷鏈的直接原因,根據現場檢測人員提供的數據按照VDI2324安全系數計算標準得出的結論為現場安全系數為7.15。
斗式提升機廠家提示:請通過正規渠道購買奧創提升機,以保障您的合法權益!
訂購網址請登錄河南奧創機械有限公司官方網站:www.tmdistrict87.com 24小時服務熱線:13353676726


