選煤廠脫水斗式提升機各部件安裝流程
選煤廠脫水斗式提升機
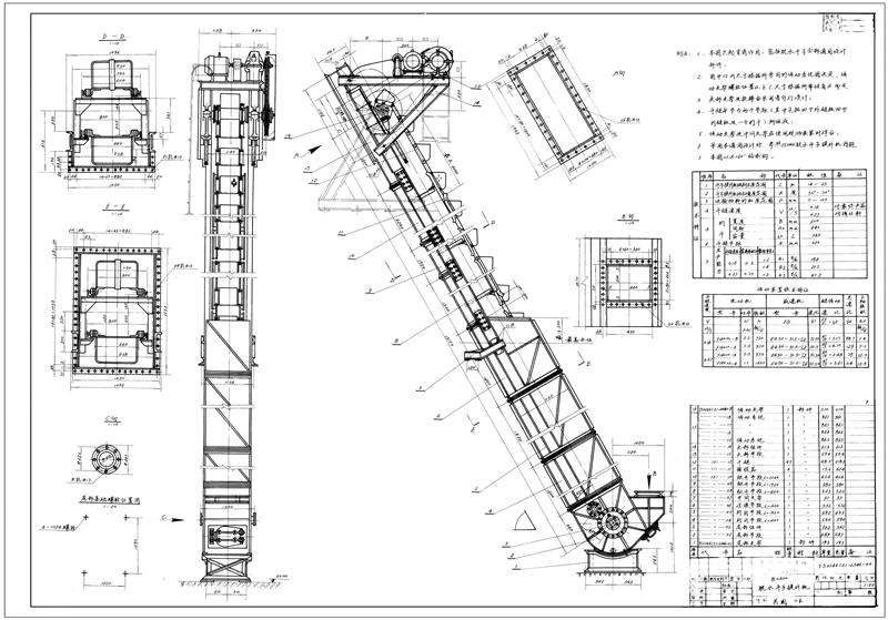
1)機殼安裝
(1)根據總圖,先從尾部支架和機尾開始安裝,然后一次往上裝封閉節段、敞開節段、頭部節段、以及機頭部分和驅動支架等。脫水斗式提升機一般需穿過幾層樓板,因此安裝時應特別注意,使各支架均勻地承擔荷重。
(2)脫水斗式提升機各節段的連接應對準中心線,傾斜角度和導軌間距,根據圖紙嚴格校準,并臨時固定在樓板孔中,最后用螺栓連接,并固定各節段。
(3)各支架在樓板或基礎上的安裝,應根據總圖進行。當各支架配置就緒并校準后,既可澆灌混凝土。在澆灌層固結后,用螺栓固定支架,待10~20天后,可將支架進行焊接,將臨時固定件拆除。

2)頭部組件安裝
頭部組件經安裝和調整后,應符合下列要求:
(1)頭部組件主軸能自由轉動。
(2)軸承蓋固定后,應保證軸瓦與軸之間的正常工作間隙。
(3)兩驅動星輪的對應邊應在同一平面上 。
(4)緊鏈裝置的導軌,應互相平行,其兩軌面在同一平面內,絲杠在螺母內順利轉動,但不許松動。

3)尾部組件的安裝
尾部組件軸的中心線應保持水平,并且垂直于尾部節段的側板,安裝后的軸應能自由轉動,不允許有抱軸現象或其他毛病。
掛設斗鏈 斗鏈在安裝前應進行檢查,凡有損傷處,均應維修。斗鏈的裝配工作是單獨進行的,全部裝好后再往機身掛設。 斗鏈的掛設步驟如下:
1)先用繩索將斗鏈牽引到主軸的星輪上,并將斗鏈掛在星輪上。
2)啟動提升機,使星輪主軸運轉。
3)電動機反轉,使斗鏈反向運轉,達到位置。
4)在點1處將斗鏈斷開,將斗鏈下段臨時固定,斗鏈上段重新與等待安裝的斗鏈相接。
5)重新啟動提升機,使星輪主軸正轉,將斗鏈運轉到后,在點1和2處將斗鏈接上。斗鏈安裝前,應將緊鏈裝置放在極限位置,使主動星輪與尾部滾輪的中心距為最短;斗鏈安裝后,再利用緊鏈裝置,使斗鏈處在張緊狀態。斗鏈與兩條導向角鋼的側面間隙應保持相等,并使鏈板的鉸鏈動作靈活。
河南奧創機械設備有限公司專業生產各種輸送設備,振動設備商家
訂購網址請登錄河南奧創機械有限公司官方網站: www.tmdistrict87.com 24小時服務熱線:13353676726


