斗式提升機
斗式提升機價格|斗式提升機型號|斗式提升機圖紙-提升機生產廠家13353676726廠家直銷
斗式提升機
應用行業:粉末、冶金、化工、醫藥、礦山、建材、玻璃、食品
適用物料:粉狀,粒狀及小塊狀
價格區間:500-10000元/米 處理能力:1-500t/h
斗式提升機簡介
奧創機械生產的斗式提升機是根據標準進行生產的,并結合我廠的生產經驗改進,我廠的斗式提升機已經達到了現今設備中提升設備,具有輸送量大,提升高度高,運行平穩可靠,壽命長顯著優點。
奧創廠家根據不同行業不同單位的需求,可把斗式提升機分為三種形式,皮帶式、環鏈式、板鏈式;
1、皮帶式斗式提升機具有噪音小、成本底的優點,非常適合糧食、化工等輕型物料的提升,采用離心式卸料的方式,該機運行可靠性好,先進的設計原理和加工方法,保證了整機運行的可靠性,無故障時間超過2萬小時。
2、環鏈式斗式提升機采用鍛造環鏈作為傳動部分,具有很強的機械強度,主要用于提升機粉體和小顆粒及小塊狀物料,區別于TD系列斗式提升機,其提升量更大、運轉效率更高。其常用于較大比重的物料的提升。
3、板鏈斗式提升機區別于其他廠家的該機,操作方便,維修少,易損件少。輸送鏈為套筒滾子鏈,誘導式重力卸料,用于各種粉狀、塊狀物粒的垂直提升。本機系流入式喂料,物料流入料斗內靠板鏈提升到頂端,在物料重力作用下自行卸料。
斗式提升機規格參數
皮帶式斗式提升機各規格型號參數表:
| 型號 | TD160 | TD250 | TD315 | TD400 | ||||||||||||
| 料斗形式 | Q | h | zD | Sd | Q | h | zD | Sd | Q | h | zD | Sd | Q | h | zD | Sd |
| 輸送量(m3/h) | 5.4 | 9.6 | 9.6 | 16 | 12 | 22 | 23 | 35 | 17 | 30 | 25 | 40 | 24 | 46 | 41 | 66 |
| 斗寬(mm) | 160 | 250 | 315 | 400 | ||||||||||||
| 斗容(L) | 0.5 | 0.9 | 4.2 | 1.9 | 1.3 | 2.2 | 3.0 | 4.6 | 2 | 3.6 | 3.8 | 5.8 | 3.1 | 5.6 | 5.9 | 9.4 |
| 斗距(mm) | 280 | 350 | 360 | 450 | 400 | 500 | 480 | 560 | ||||||||
| 帶寬(mm) | 200 | 300 | 400 | 500 | ||||||||||||
| 斗速(m/s) | 1.4 | 1.6 | 1.6 | 1.8 | ||||||||||||
| 物料量大塊(mm) | 25 | 35 | 45 | 55 | ||||||||||||
| 型號 | TD500 | TD630 | TD160 | TD250 | TD350 | TD450 | ||||||||||
| 料斗形式 | Q | h | zD | Sd | h | zD | Sd | Q | S | Q | S | Q | S | Q | S | |
| 輸送量(m3/h) | 38 | 70 | 58 | 92 | 85 | 89 | 142 | 4.7 | 8 | 18 | 22 | 25 | 42 | 50 | 72 | |
| 斗寬(mm) | 500 | 630 | 160 | 250 | 350 | 450 | ||||||||||
| 斗容(L) | 4.8 | 9 | 9.3 | 15 | 14 | 14.6 | 23.5 | 0.65 | 1.1 | 2.6 | 3.2 | 7 | 7.8 | 14.5 | 15 | |
| 斗距(mm) | 500 | 625 | 710 | 300 | 400 | 500 | 640 | |||||||||
| 帶寬(mm) | 600 | 700 | 200 | 300 | 400 | 500 | ||||||||||
| 斗速(m/s) | 1.8 | 2 | 1 | 1.25 | 1.25 | 1.25 | ||||||||||
| 物料量大塊(mm) | 60 | 70 | 25 | 35 | 45 | 55 | ||||||||||
環鏈斗式提升機各型號規格參數表:
| 型 號 | TH160 | TH250 | TH315 | TH400 | TH500 | TH630 | TH800 | TH1000 | TH1250 | ||||||||||
| 料斗型式 | zh | sh | zh | sh | zh | sh | zh | sh | zh | sh | zh | sh | zh | sh | zh | sh | zh | sh | |
| 輸送能力,m 3 /h | 19 | 30 | 30 | 48 | 35 | 59 | 58 | 94 | 73 | 118 | 114 | 185 | 150 | 240 | 240 | 360 | 360 | 540 | |
| 料斗 | 料斗容量(l) | 1.2 | 1.9 | 3 | 4.8 | 3.75 | 6 | 5.9 | 9.5 | 9.3 | 15 | 14.6 | 23.6 | 24 | 38 | 38 | 60 | 60 | 95 |
| 斗距(mm) | 350 | 450 | 512 | 688 | 936 | 936 | 1001 | ||||||||||||
| 鏈條 | 園鋼直徑 x節(mm) | φ12X45 | φ18X64 | φ22X86 | φ24X86 | φ24X86 | φ28X92 | ||||||||||||
| 單鏈條破 斷強(KN) | ≥170 | ≥320 | ≥480 | ≥560 | ≥560 | ≥660 | |||||||||||||
| 料斗運動 速度 (m/s) | 1.3 | 1.2 | 1.4 | 1.5 | 1.6 | 1.6 | 1.6 | ||||||||||||
| 傳動鏈輪轉數 (r/min) | 62.5 | 46.8 | 42.5 | 37.6 | 35.8 | 31.8 | 30.5 | 30.5 | 28 | ||||||||||
| 輸送物料的塊度(mm) | 20 | 25 | 35 | 40 | 50 | 60 | 75 | 85 | 100 | ||||||||||
板鏈斗式提升機各型號規格參數表:
| 型號 | 提升量 平方米/小時 | 物料塊度 | ||||
| 占百分比 % | ||||||
| 10 | 25 | 50 | 75 | 100 | ||
| NE15 | 15 | 65 | 50 | 40 | 30 | 25 |
| NE30 | 32 | 60 | 75 | 58 | 47 | 40 |
| NE50 | 60 | 90 | 75 | 58 | 47 | 40 |
| NE100 | 110 | 130 | 105 | 80 | 65 | 55 |
| NE150 | 170 | 130 | 105 | 80 | 65 | 55 |
| NE200 | 210 | 170 | 135 | 100 | 85 | 70 |
| NE300 | 320 | 170 | 135 | 100 | 85 | 70 |
| NE400 | 380 | 205 | 165 | 125 |
105 |
90 |
| NE500 | 470 | 240 | 190 | 145 | 120 | 100 |
| NE600 | 600 | 240 | 190 | 145 | 120 | 100 |
| NE800 | 800 | 275 | 220 | 165 | 135 | 110 |
斗式提升機工作原理
料斗把物料從下面的儲藏中舀起,隨著輸送帶或鏈提升到頂部,繞過頂輪后向下翻轉, 斗式提升機將物料傾入接受槽內。帶傳動的斗式提升機的傳動帶一般采用橡膠帶,裝在下或上面的傳動滾筒和上下面的改向滾筒上。鏈傳動的斗式提升機一般裝有兩條平行的傳動鏈,上或下面有一對傳動鏈輪,下或上面是一對改向鏈輪。斗式提升機一般都裝有機殼,以防止斗式提升機中粉塵飛揚。
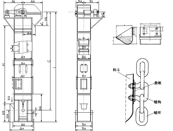
斗式提升機結構圖紙
環鏈式斗式提升機結構圖紙

斗式提升機廠家
河南奧創斗式提升機廠家是一家以物料提升機研發生產為主要營業范圍的廠家,可為粉末、冶金、化工、醫藥、礦山、建材、玻璃、食品、涂料、陶瓷、煤炭、石英砂等求購斗式提升機的廠家根據物料屬性提供垂直、皮帶、環鏈、板鏈斗式提升機的行業解決方案,其中包括斗式提升機結構圖紙繪畫、價格計算、廠家真機圖片展示,及到廠實地考察接待,歡迎實地考察!
訂購網址請登錄河南奧創機械有限公司官方網站: www.tmdistrict87.com 24小時服務熱線:13353676726


