波狀擋邊皮帶機
大傾角波狀擋邊皮帶機介紹:
大傾角波狀擋邊帶式輸送機是一種新型的皮帶輸送機,它具有變角容易,占地面積小、能耗省、噪音低,輸送量大、膠帶運行平穩,使用壽命長,可選機型多,總體造價低等優點。廣泛用于港口、碼頭、冶金、化工、電力、煤炭、建材等部門塊狀或散狀物料的輸送。帶寬系列有:BS00、650、800、1000、1200、1400。
大傾角波狀擋邊皮帶機特點:
1、大出率。2、不撒料3、高傾角。4、布置靈活。
大傾角波狀擋邊皮帶機部件名稱及用途:
一、傳動滾筒: 是動力傳遞的主要部件,輸送帶借其與傳動滾筒之間的摩擦力而運行。本系列傳動滾筒有膠面和光面之分,膠面滾筒是為了增加滾筒和輸送帶之間的附著力。
二、驅動裝置: 是皮帶輸送機中的動力部分。系由Y系列電動機,ZJ型軸裝式減速器,楔塊式逆止器組成。
三、波狀擋邊輸送帶: 在輸送機中起曳引和承載作用。波狀擋邊、橫隔板和基帶形成了輸送物料的"閘"形容器,從而實現大傾角輸送。
大傾角波狀擋邊皮帶機使用現場:
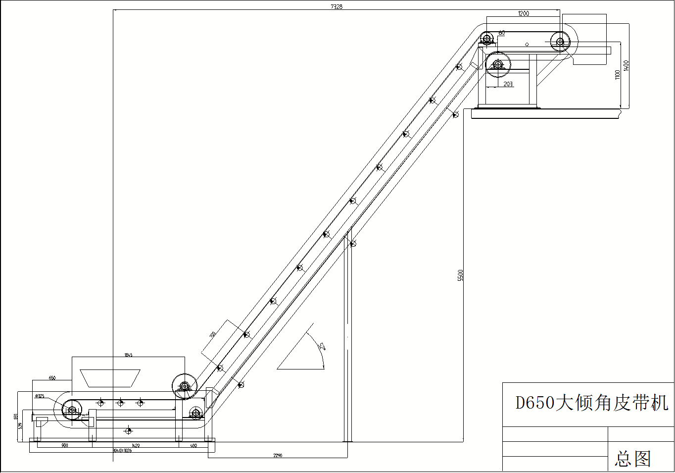
大傾角波狀擋邊皮帶機圖紙:
大傾角波狀擋邊皮帶機技術參數:
|
傾角 |
檔邊高mm |
80 |
100 |
120 |
160 |
200 |
240 |
300 |
400 |
|
30° |
160 |
225 |
278 |
349 |
493 |
552 |
746 |
936 |
1200 |
|
35° |
160 |
203 |
257 |
329 |
456 |
543 |
725 |
903 |
1158 |
|
40° |
160 |
183 |
237 |
309 |
431 |
512 |
705 |
872 |
1117 |
|
45° |
160 |
164 |
218 |
290 |
434 |
515 |
686 |
842 |
1077 |
|
50° |
160 |
145 |
199 |
271 |
415 |
492 |
667 |
812 |
1038 |
|
55° |
125 |
157 |
212 |
284 |
427 |
468 |
612 |
783 |
1000 |
|
60° |
125 |
142 |
197 |
27l |
336 |
444 |
588 |
753 |
960 |
|
65° |
125
250 |
127
63 |
181
92 |
253
291 |
311 255 |
420
361 |
563
506 |
722 |
920 |
|
70° |
125
250 |
114
57 |
165
82 |
237
123 |
285
229 |
394
330 |
538
474 |
689 |
876 |
|
75° |
125
250 |
103
51 |
149
74 |
219
111 |
258
207 |
366
298 |
510
439 |
655 |
830 |
|
80° |
125
250 |
93
46 |
134
67 |
201
100 |
233
187 |
336
269 |
489
402 |
617 |
780 |
|
85° |
125
250 |
84
42 |
121
61 |
181
91 |
2l1
169 |
304
243 |
447
364 |
576 |
726 |
|
90° |
125 |
76 |
110 |
163 |
300 |
409 |
409 |
528 |
665 |
大傾角皮帶輸送機擋邊帶
擋邊帶是擋邊輸送帶的簡稱,主要有波狀擋邊輸送帶(也叫裙邊輸送帶)和大傾角擋邊輸送帶,二者的區別就是大傾角擋邊輸送帶多了橫隔板。擋邊輸送帶基帶要求具有一定的抗拉強度和耐磨性。對留有空邊的波狀擋邊輸送帶,為了適應角度改向的要求,膠帶的縱向要有柔軟性,橫向則要求一定的剛性。
結構簡介
波狀擋邊帶由基帶、擋邊、橫隔板三部分組成。擋邊起防止物料測滑撒落的作用。為便于繞過滾筒,檔邊設計成波紋狀;橫隔板的作用是承托物料,為了實現大傾角輸送,采用T型TC型。檔邊和橫隔板是用二次硫化的方法與基帶連接的,具有很高的連接強度
基帶是由上覆蓋膠、下覆蓋膠、帶芯和橫向剛性層四部分組成。上覆蓋膠厚度一般為3-6mm;下覆蓋膠厚度一般為1.5-4.5mm,帶芯材料承受拉力,其材料可以是棉帆布(CC)、尼龍帆布(NN)、聚酯帆布(EP)或鋼絲繩芯(ST)。為了增加基帶的橫行剛性,在芯體上、上加特殊加強層,稱橫向剛性層。
性能特點和主要用途
性能特點
1、承受拉力高,縱向具有柔軟性,橫向具有剛性,可避免在回程過程中的塌帶現象。
2、擋邊具有良好的抗壓強度,外側有補強筋、支撐力強、耐曲撓、抗磨損。
3、擋邊、隔板與基帶采用熱硫化工藝,結合緊密、牢固。
4、能使各種散狀物料以0-90度任意傾角連續輸送,具有輸送傾角大,適用范圍廣,占地面積小,輸送量高等特點。
5、能耗低、結構簡單、膠帶強度高、使用壽命長。
主要用途
波形擋邊輸送帶被廣泛引用與港口、冶金、礦山、電力、煤炭、鑄造、建材、糧食、化肥等領域物料輸送。400mm 粒度以下粒度不限,輸送量可從 1m 3 /小時至6000m3/小時任選,還可輸送糊狀及液態狀物料。
大傾角皮帶輸送機廠家友情提示:請通過正規渠道購買奧創輸送機,以保障您的合法權益!
訂購網址請登錄河南奧創機械有限公司官方網站:www.tmdistrict87.com 24小時服務熱線:13353676726


