選煤廠K型往復式給煤機
選煤廠K型往復式給煤機-鏟煤給料機 運行穩定 供料均勻 生產廠家定制 13353676726

選煤廠K型往復式給煤機產品介紹
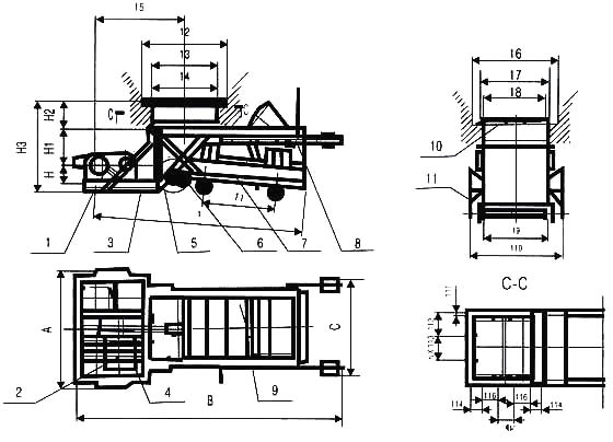
K型往復式給煤機(往復式給料機)系列產品適用于礦井和選煤廠,將煤碳經煤倉均勻地裝載到輸送機或其它篩選,貯存裝置上。河南奧創機械生產的該?系列往復式給料機(往復式給煤機)產品結構是由機架、底板(給料槽)傳動平臺、漏斗閘門、托輥等組成。
K型往復式給料機(往復式給煤機)產品傳動原理:當電動機開動后,經彈性聯軸器、減速器、曲柄連軒機構拖動傾斜的底板在插輥上作直線往復運動,將煤均勻地卸到運輸機械或其它篩選設備上。該機設有帶漏斗、帶調節閥門和不帶漏斗、不帶調節閥門兩種形式。

選煤廠K型往復式給煤機產品特征
1、工作可靠、壽命長
2、重量輕,體積小,維護保養方便;
3、結構簡單,運行可靠,調節安裝方便;
4、封閉式框架結構,大大提高了機架的剛度;
5、給料量可達1200噸/小時(煤),是目前國內的往復式給料機;
6、采用了先進的平面二次包絡環面騾桿減速器設計,承載能力大,傳動效率高;
7、側襯板、斜襯板與底板之間留縫可調,能比較準確地控制留縫大小,大大減少了漏料;
8、驅動裝置對稱布置,并采用雙推桿 ,使整機愛力均衡,傳動平穩,消除了底板往復時的扭擺現象;
9、襯板由小塊耐磨鋼板拼成,這樣不僅更換時輕便容易,而且可以根據實際磨損情況,有針對性地更換磨損了的襯板塊,從而使材料合理利用,降低維修費用。
選煤廠K型往復式給煤機工作原理
在料倉下部設一導料槽,導料槽底版為活動式,用一動力裝置帶動底板循環往復運動,當底板向給料口方向運行時,物料隨底版一起運動,完成給料過程;當底版向反 方向運行時,物料在內壓力及內外摩擦力的共同作用下,物料并不隨底板一起運動;底板不斷循環往復運動,倉內物料不斷的被送往出料口。
選煤廠K型往復式給煤機結構
選煤廠K型往復式給煤機應用
K型往復式給料機適用于礦山、礦井、選煤廠、中轉站、輸煤車間、港口散料碼頭等散料轉運,可將散料經料倉或直接進行均勻的轉載到膠帶機或其它篩選設備、貯存 裝置等配合使用。實現對礦石、砂煤、糧食等散裝物料的均勻 給料.本設備機體安裝于料斗下,傳動裝置為懸掛式,根據給料量的大小可分:K1、K2、K3、K4等幾種型號。
選煤廠K型往復式給煤機參數選型
|
型號規格 |
K-0 |
K-1 |
K-2 |
K-3 |
K-4 |
|||||||
|
給料能力(t/h) |
底版行程 |
曲柄位置 |
無煙煤 |
煙煤 |
無煙煤 |
煙煤 |
無煙煤 |
煙煤 |
無煙煤 |
煙煤 |
無煙煤 |
煙煤 |
|
200mm |
4 |
100 |
90 |
150 |
135 |
225 |
200 |
330 |
300 |
590 |
530 |
|
|
150mm |
3 |
75 |
67 |
112 |
100 |
170 |
150 |
247 |
220 |
440 |
395 |
|
|
100mm |
2 |
50 |
45 |
75 |
68 |
133 |
100 |
165 |
150 |
295 |
268 |
|
|
50mm |
1 |
25 |
22 |
34 |
34 |
55 |
50 |
83 |
75 |
148 |
132 |
|
|
曲柄轉速(r/min) |
57 |
57 |
62 |
62 |
62 |
|||||||
|
電動機 |
型號 |
YB160M1-8 |
YB160M1-8 |
YB160M1-8 |
YB160M1-6 |
YB160M1-6 |
||||||
|
功率(KW) |
4 |
4 |
4 |
7.5 |
18.5 |
|||||||
|
轉速(r/min) |
720 |
720 |
720 |
970 |
970 |
|||||||
|
減速機 |
型號 |
JZQ0-350 |
JZQ0-350 |
JZQ0-350 |
JZQ-400 |
JZQ-500 |
||||||
|
速比 |
12.64 |
12.64 |
12.64 |
15.75 |
15.75 |
|||||||
|
允許大顆粒(mm) |
含量10%以下 |
250 |
350 |
400 |
500 |
700 |
||||||
|
含量10%以上 |
200 |
300 |
350 |
450 |
550 |
|||||||
|
設備重量(kg) |
帶料斗 |
1127 |
1251 |
1481 |
1927 |
2737 |
||||||
|
不帶料斗 |
1026 |
1144 |
1342 |
1735 |
2505 |
|||||||
1、K型往復式給料機有帶漏斗與不帶漏斗及帶調節閘門與不帶閘門組合成的多種型式,如帶漏斗,帶調節閘門;帶漏斗不帶調節閘門。
2、調調節閘門時,其給料量受調節閘門控制。
3、一般供貨時為普通電機,電壓380V,ZQ型減速機,如有特殊要求,需訂貨時說明,如用660電壓電機,防爆電機,其它型號減速機等。
選煤廠K型往復式給煤機安裝
一、往復式給料機是固定安裝在儲料倉口下,在安裝前需要確定水平位置,將機架與倉口用螺栓緊固,然后再將傳動平臺安放在正確位置上,H形架與機架,傳動平臺焊牢,減速機、電動機找正安裝,調節適當,用螺栓緊固。
二、安裝后需要進行空負荷試車,運轉當中,檢查各部件工作是否正常,滾動軸承高溫升不得高于60℃。
三、依據卸料要求調節生產率時,將曲柄部位銷軸拔出,松動螺母,轉動曲柄殼的位置“1、2、3、4”選擇固定,將銷軸插入,聯結曲柄與曲柄與曲柄殼,緊固銷軸和螺母,調整完畢后再開車。

K型往復式給煤機日常檢修與維護:
1.給煤機運行前,煤倉內應貯有足夠原煤量,以避免裝煤入倉時,直接沖擊底板(給煤板)。
2.每月連續工作后應檢查機件有無松動等不正?,F象,若有不正常現象出現,應立即檢修。
3.給料機與煤直接接觸的底襯板,其厚度磨損程度大于原厚度的二分之一必須進行修補或更換。
4.轉動部件在連續工作六個月后,需檢查一次,拉桿部分的機件必須保持正常配合,如有不正常現象,立即修復或更換。
5.對主要部件的維護:
a、減速機:每六個月檢查一次,同時對滾動軸承和箱體進行清洗或更換潤滑油。
b、電動機:按電動機規定的檢修養護要求進行。
K型往復式給煤機廠家提示:請通過正規渠道購買奧K型往復式給煤機,以保障您的合法權益!
訂購網址請登錄河南奧創機械有限公司官方網站: www.tmdistrict87.com 24小時服務熱線:13353676726


